|
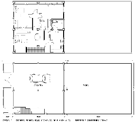
Venta de Parcela de 250m2 en CL Marcelino Camacho, Humilladero, Málaga. Incluye proyecto arquitectónico (planos y memorias) sin visar y sin dirección de obra. En las ilustraciones inferiores se observa un par de ejemplos para construir en la parcela.
|
|
Parcela Norte
|
Parcela Sur
|
|
VIVIENDA DE PLANTA ALTA SOBRE COCHERA
|
VIVIENDA DE PLANTA BAJA
|
|
|
 |
|